Southgate Residence

A contemporary rural home designed to capture long views while maintaining a warm and grounded street presence. Simple forms and natural materials create a home that sits comfortably within its Tasmanian landscape.

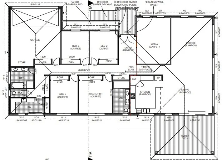
Project type: Custom Home

Bedrooms: 4

Bathrooms: 2

Living: 3

Size: 323m2

Next
Next

Ranelagh Townhouse